所属分类:振动筛系列
Product introduction
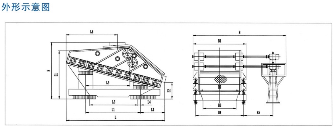
产品介绍
工作原理及产品用途
ZSL系列大型冷矿振动筛属于双轴直线振动筛,由两台电动机通过传动轴外拖动激振器作反向自同步旋转,使筛箱产生较大振幅的直线振动,电机不参振,这种振动筛具有生产能力大、工作可靠、振幅调节方便、传给基础的动负荷小等优点。已广泛用于冶金、矿山、煤炭、港口等工业部门,主要用于温度在150°C以下;冷烧结矿分级作业。
结构特点
该系列振动筛由筛箱、激振器、支承弹簧、隔振架、二次隔振弹簧、电动机及其支架等组成。
筛框部件由筛框、筛板及紧固装置组成。筛框侧板用整块优质钢板制造,侧板、加强筋板和横梁、激振器底架间的连接采用高强度螺栓与自锁式螺母或环槽铆钉连接,牢固可靠。
激振器一般安装在筛框上部的两边侧板上。制成上振式结构,激振器也可布置在筛框的上部用万向联轴器连接,激振器采用迷宫环密封,干油润滑。该系列冷矿筛筛板采用耐磨合金钢或不锈钢筛板,具有不变形,寿命长的特点。
使用与维护
1.筛机应避免带料启动,使用前清理筛机周围及机上杂物。
2.在筛子工作过程中,如发现运转不平稳,有异常声音或其他不正常的状况时,应立即停车检查。3.经常检查螺栓连接情况,若有松动立即拧紧。
4.振源的调整、使用和维护,请参照振源使用说明书。
安装与调试
1.安装前,要把现场基础与筛子安装图对照检查,预埋钢板的平面度误差≤3mm.
2安装前,根据筛子从下到上的顺序进行安装,每一个环节都调整到初步合格的状态之后,再进行下一环节的安装。
3.筛子安装完毕,调整好相对位置,一次与二次减振弹簧均呈垂直状态,电动机轴线应低于激振器轴线3-5mm ,再把电机支架、弹簧底座与预埋钢板焊接焊牢。
4.要求两台电机转向必须相反,激振器偏心块处于同一相位。
5.振动筛空载运行4-6小时,要求筛体运行平稳,无摇摆与异常响声,检查筛板、激振器的紧固状况。




Customer case
客户案例
Relevant news
相关新闻
-
08-17
积极维护防汛救灾网络秩序倡议书近期,东北、华北、黄淮等地出现极端降雨,多地出现居民被困和人员伤亡情况,全国各地救援力量迅速集结,全力投入防汛救灾工作。在当前全国齐心聚力、携手救灾的特殊时期,... -
11-20
振动筛的大好场景!国内的振动筛行业可谓是风生水起,行业内一派火热景象。别的不说,就拿行业消息来讲:鞍重股份高性能大型振动筛入围国家科技技术发明奖;中联重科首台4GLS2530...
-
11-20
振动筛为什么能取代摇动筛?振动筛在行业初期也遇到过很多强有力的竞争对手,就像摇动筛,也风靡一时。今天,我们带你一起探讨一下,振动筛为什么取代摇动筛? 摇动筛是以曲柄连杆机构作为传动...
